Rif: Aff. 23379
SEREGNO
MONZA BRIANZA - zona Stazione
Aff. 23379 - Stabile di inizio '900 composto da 3 livelli fuori terra, con ampio cortile privato, tripli ingressi verso tre differenti vie. Box triplo al piano terreno. Posizionato all'esterno della zona pedonale ed a breve distanza pedonale dalle F.S. e fermata degli autobus e prossima metro-tramvia. La posizione strategica lo rende interessante per svariate trasformazioni residenziali/commerciali. Cortile in pianta quadrata con accesso carraio, doppi accessi pedonali da differenti vie, cantina a volta al piano interrato. L'immobile comprende sui vari livelli diversi locali residenziali e commerciali/deposito completamente da riattare. L'ubicazione lo rende estremamente interessante per svariate attività commerciali che necessitano di visibilità, il cortile interno è ideale per accogliere i mezzi dei clienti, oppure per realizzare un immobile residenziale di pregio. Inoltre vi è la possibilità di recuperare il piano sottotetto.
Consistenze
| Descrizione | Superficie | Sup. comm. |
|---|---|---|
| Principali | ||
| Magazzino - piano terra | 355 Mq | 355 Mqc |
| Box/Garage - piano terra | 60 Mq | 30 Mqc |
| Immobile - 1° piano | 224 Mq | 224 Mqc |
| Magazzino - 1° piano | 135 Mq | 135 Mqc |
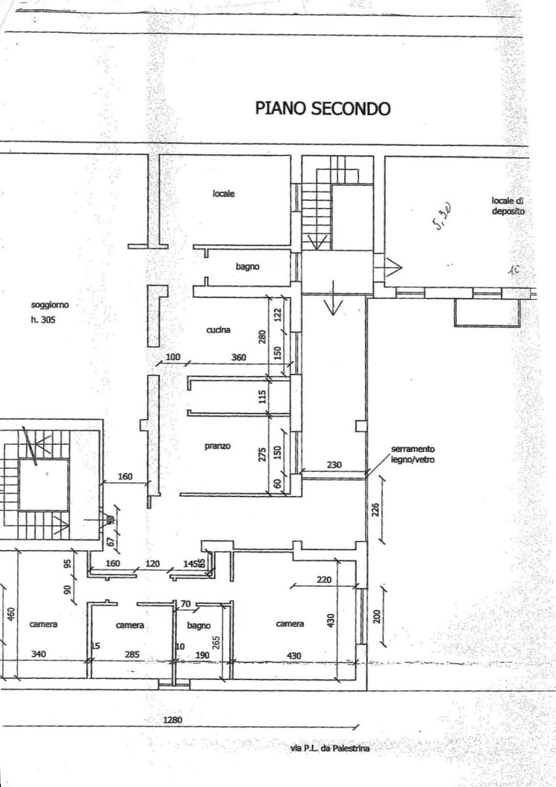
| Immobile - 2° piano | 223 Mq | 223 Mqc |
| Magazzino - 2° piano | 55 Mq | 55 Mqc |
| Terrazza - 1° piano | 30 Mq | 9 Mqc |
| Terrazza - 2° piano | 30 Mq | 9 Mqc |
| Terreno - piano terra | 375 Mq | 38 Mqc |
| Altro - 3° piano | 200 Mq | 20 Mqc |
| Totale | 1.098 Mqc | |






